Ambientes de Cura (Healing Environments)
Seu projeto arquitetônico contribui para a recuperação dos pacientes?
Estudos apontam a arquitetura como fator de grande influência para a recuperação de pacientes, especialmente os que passam longos períodos no ambiente hospitalar.

Humanização
Seus ambientes hospitalares são frios e impessoais?
A ambientação de consultórios cria cenários diferenciados e mobiliários que proporcionam aconchego e descanso, promovendo mais envolvimento e melhorando a qualidade de vida dos usuários.

Foto: Jason Silva
Sustentabilidade
Menor impacto ambiental, redução da necessidade de energia, eficiência energética, proteção contra contaminantes do ar, maximização da vida útil de materiais, preservação de recursos para gerações futuras.
Seu projeto é sustentável?
Conforto Térmico
O ser humano tem melhores condições de vida e de saúde, quando seu organismo funciona sem ser submetido à fadiga ou estresse, inclusive térmico.
Elaboramos estudos de insolação e estratégias bioclimáticas, buscando a solução térmica ideal para cada edificação.

Conforto Acústico
Fontes sonoras diversas como máquinas e equipamentos médico-hospitalares são mapeados e corretamente tratados.
O controle da reverberação contribui para a clareza, o entendimento da fala, e também, para a redução do ruído de fundo nos ambientes.

Conforto Visual
O correto aproveitamento da iluminação natural e a iluminação artificial eficiente, são simuladas para melhor definição de estratégias e especificações.
Resultado: Ambiente acolhedor, pacientes mais satisfeitos e Economia de Energia!

Normas e Legislações de Projetos de Saúde
O projeto de arquitetura da uma clínica deve atender diversas normas como RDC-50/02, RDC-307/02, RDC-189/03, SomaSUS, Acessibilidade, Proteção Radiológica, Endoscopia, Central de Materiais e Esterilização, Centro Cirúrgico, Nutrição Enteral, Laboratórios de Histocompatibilidade e Imunogenética…
Deixe conosco a solução e compatibilização das normas do seu projeto!
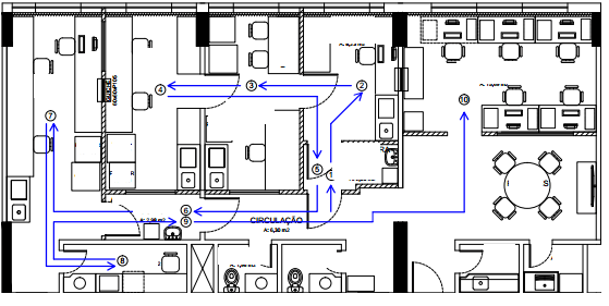
Fluxos
O estudo dos fluxos é um dos primeiros passos na elaboração do projeto arquitetônico de consultórios e laboratórios. São observadas as inter-relações entre setores e atividades, possibilitando o planejamento físico-funcional e até mesmo a redução de infecções hospitalares.

Estudos de Lay-Out
O dimensionamento de ambientes no projeto de arquitetura de clínicas deve considerar o programa de necessidades, as atividades que serão realizadas no ambiente, os fluxos internos, o mobiliário e os equipamentos médicos.

Inovação
A inovação é nosso compromisso. Inovamos nos conceitos, inovamos na arquitetura hospitalar. Entregamos mais do que um projeto, entregamos BENEFÍCIOS REAIS para nossos clientes sejam empreendedores, usuários ou pacientes.



